ycliper

Популярное

Музыка Кино и Анимация Автомобили Животные Спорт Путешествия Игры Юмор

Интересные видео

2025 Сериалы Трейлеры Новости Как сделать Видеоуроки Diy своими руками

Топ запросов

смотреть а4 schoolboy runaway турецкий сериал смотреть мультфильмы эдисон
Скачать

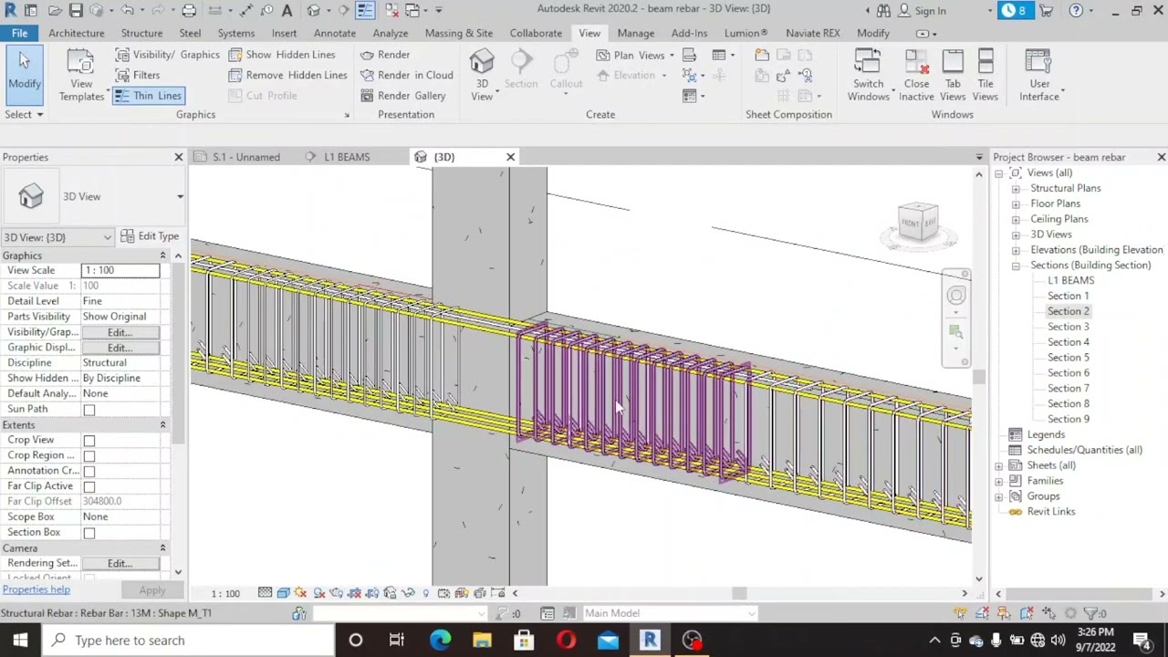
كيفية إضافة حديد التسليح للكمرات والحوائط والقاعدة الشريطية - How To Create Reinforcement in Revit

Автор: A M R O U . I B R A H I M

Загружено: 2021-03-04

Просмотров: 3658

Описание: السلام عليكم ورحمة الله وبركاته - فى هذا الدرس سوف يتم شرح كيفية اضافة التعزيز والتسليح بالاسياح يدويا لبعض العناصر الإنشائية مثل الكمرات Beams والحوائط Walls مع اساستها ، ومراجعة سريعة على كيفية نمذجة بلاطة مسلحة بسيطة Slab مع توضيح كيفية اظهار شكل حديد التسليح على مجسم البعد الثالث 3D Model باستخدام أمر Visibility States مع اضافة التلوين لأنواع حديد التسليح المختلفة وإظهارها فى المشهد بشكل مناسب ومريح للعين ، أيضا كيفية اضافة حديد التسليح لنموذج كمرة والتى يكون بها على سبيل المثال عدد(4)اسياخ قطر 16 ملم تسليح سفلي منهم عدد(2) سيخ مكسح وعدد(3)اسياخ قطر 12 ملم تسليح علوي مع كيفية اضافة حديد التسليح بشكل افتراضي للقاعدة الشريطية أسفل الحائط
-----------------------------------------------------------------------------------------
الجروب الخاص تابع صفحتنا العلوم والتكنولوجيا From CAD to BIM
  / amro1  
...
-----------------------------------------------------------------------------------------
رابط اليوتيوب التعليمي
‪@AMROUIBRAHIM99‬

لكم كل الاحترام والتقدير

Не удается загрузить Youtube-плеер. Проверьте блокировку Youtube в вашей сети.
Повторяем попытку...
كيفية إضافة حديد التسليح للكمرات والحوائط والقاعدة الشريطية - How To Create Reinforcement  in Revit

Поделиться в:

Доступные форматы для скачивания:

Скачать видео

  • Информация по загрузке:

Скачать аудио

Похожие видео

كيفية انشاء وتعديل وإضافة حديد التسليح للسلم - Reinforcement Stair In Revit

كيفية انشاء وتعديل وإضافة حديد التسليح للسلم - Reinforcement Stair In Revit

Modeling Reinforcement in a Concrete Wall Using Revit

Modeling Reinforcement in a Concrete Wall Using Revit

How to change the color of Rebar in Revit | Revit 2020 |

How to change the color of Rebar in Revit | Revit 2020 |

Revit 2024 Reinforcement | Rebar Placing and Propagate Rebars

Revit 2024 Reinforcement | Rebar Placing and Propagate Rebars

Modeling Metro Stations in #revit Station 2

Modeling Metro Stations in #revit Station 2

КАК ИЗБАВИТЬСЯ ОТ ОШИБКИ СЕТЕВОЙ ЛИЦЕНЗИИ REVIT 2024.

КАК ИЗБАВИТЬСЯ ОТ ОШИБКИ СЕТЕВОЙ ЛИЦЕНЗИИ REVIT 2024.

THAAD, Patriot, Iron Dome: почему ракеты Ирана прорывают ПВО Израиля? - Скотт Риттер

THAAD, Patriot, Iron Dome: почему ракеты Ирана прорывают ПВО Израиля? - Скотт Риттер

Парадокс ригеля и стропил

Парадокс ригеля и стропил

⚡️ Англия наносит ракетный удар вглубь России // Москва аннулирует «Стамбул» // репарации Ирану

⚡️ Англия наносит ракетный удар вглубь России // Москва аннулирует «Стамбул» // репарации Ирану

Как восстановить файлы и флешку одной командой  Реквием

Как восстановить файлы и флешку одной командой Реквием

⚡️ Штурмовики прорвали границу || Военные заявляют о тяжёлых боях

⚡️ Штурмовики прорвали границу || Военные заявляют о тяжёлых боях

Он не знал, Что Это был Брюс Ли — Чемпион Бросил вызов Случайному Человеку в Зале

Он не знал, Что Это был Брюс Ли — Чемпион Бросил вызов Случайному Человеку в Зале

rebar color in revit

rebar color in revit

Фильм Алексея Семихатова «ГРАВИТАЦИЯ»

Фильм Алексея Семихатова «ГРАВИТАЦИЯ»

Автоматизация дизайна 2026: Создаем планировку и визы за 15 минут

Автоматизация дизайна 2026: Создаем планировку и визы за 15 минут

3-15 Foundation RFT - SofiStik Reinforcement

3-15 Foundation RFT - SofiStik Reinforcement

Симпсоны: Шокирующие Пророчества 2026!

Симпсоны: Шокирующие Пророчества 2026!

Россия победила в войне / Официальное заявление МИД

Россия победила в войне / Официальное заявление МИД

САПР в машиностроении. Фильм 1, 1986

САПР в машиностроении. Фильм 1, 1986

Крутящий момент и мощность двигателя

Крутящий момент и мощность двигателя

© 2025 ycliper. Все права защищены.



  • Контакты
  • О нас
  • Политика конфиденциальности



Контакты для правообладателей: [email protected]